山﨑ビル 4階
身支度にもお使いいただける、洗面所が独立した物件です。50.57㎡ある専有面積で暮らせます。バストイレ別なので浴室のスペースを広く使えます。マンションタイプのお部屋です。3DKもあるゆったりとした間取り。住まい探しの際には、実際に住んでみた時のことを想像しながら進めていくことが大事です。より良い住まいをご提供致します。
- 賃料
- 6.3万円
- 間取り
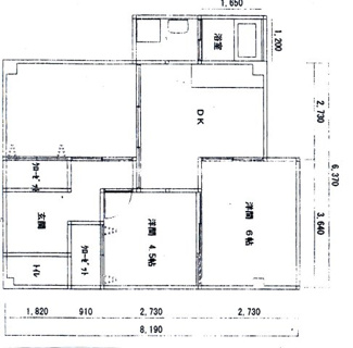
- 3DK
- 専有面積
- 50.57㎡
- 所在階
- 4階
- 管理費・共益費
- -
- 敷金
- 2ヶ月
- 礼金
- 1ヶ月
担当者のコメント フドウさん

- 薬や日用品を買うのに便利なウォンツ 府中本町店まで、284mです。身支度に必要となる様々なアイテムを収納できるスペースがある洗面化粧台を備えております。この物件の入居日指定は2025年1月なのでお早目にお願いいたします。バストイレ別のマンションです。2駅利用可能でアクセスの良いマンションです。新たな暮らしを始めるなら、安芸郡府中町がおすすめです。住環境が整っているので快適な暮らしをすることができます。賃貸情報のことなら、当社にお問い合わせ下さい。皆様のご連絡お待ちしております。
ポイント・特徴
物件概要
【マンション】 物件番号:89156092 情報更新日:2026年01月21日 次回更新予定日:2026年02月04日| 所在地 | 広島県安芸郡府中町本町4丁目5-31 | ||
|---|---|---|---|
| 交通 | |||
| 間取り/詳細 |
3DK 洋室 4.5帖/洋室 6.0帖/洋室 6.0帖/DK 6.0帖 |
面積/バルコニー面積 | 50.57㎡/- |
| 賃料 | 6.3万円 | 管理費・共益費 | - |
| 敷金/礼金/保証金 | 2ヶ月/1ヶ月/- | 償却/敷引 | -/1.5ヶ月 |
| 更新料 | - | 敷金積み増し | - |
| 権利金/雑費 | -/- | 駐車場/月額料金 | 無/- |
| 保険加入/料金 | 有/20,000円 | 保険名/保険期間 | SBI日本少額短期保険/2年 |
| 保証人代行義務 | - | 保証会社 | - |
| 保証会社詳細 | - | 向き | 西 |
| 築年月(築年数) | 1980年 4月 (築45年) | 契約期間 | 2年 |
| 種別/構造 | マンション/鉄筋コンクリート | 部屋/所在階/階建 | 402号/ 4階/ 4階建 |
| 総戸数 | - | 現況/入居可能日 | 空家/即時 |
| 特優賃 | - | 取引態様/賃貸区分 | 専任媒介/一般 |
| 物件番号 | 89156092 | 取引条件の有効期限 | 2026年02月04日 |
| 設備条件 |
|
||
| 備考 | 安芸郡府中町エリアでの住まいなら、住み心地も快適な「山﨑ビル」はいかがでしょうか。洗面化粧台を備えているので、歯ブラシやドライヤーなどをまとめて収納できます。行動範囲が広がる2駅利用可能な物件です。バスルームとトイレが分かれています。通勤時間を短縮したいなら、山陽本線天神川周辺でお部屋探しをするのも手です。数多くの賃貸情報がありますので、この機会にお引っ越しをご検討ください。 | ||
| 取扱会社 |
|
||
※地図上に表示される物件の位置は付近住所に所在することを表すものであり、実際の物件所在地とは異なる場合がございます。























